Ngaruawahia

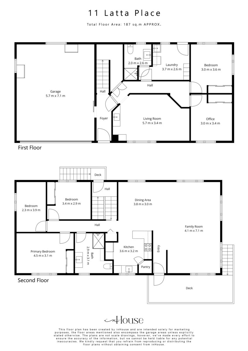
11 Latta Place

Asking Price
$759,000

5 Bed

2 Bath

2 Living

2 Garage

Large Family living, with Solar panels!

Set on a generous 975 sqm section, this beautifully maintained two-storey residence offers a refined balance of space, style, and sustainability, ideal for the modern family. With approximately 187 sqm of well-considered floor area, the home boasts five bedrooms spread across two thoughtfully designed levels. Constructed with Palisade cladding, it provides a sleek contemporary look while offering superior durability and minimal maintenance, well-suited to New Zealand’s varied weather conditions. This is a home where aesthetics meet longevity, allowing more time for living and less for upkeep. The upper level features three spacious bedrooms and a modern family bathroom. At the heart of this floor is a stylish kitchen that flows effortlessly into an open-plan dining and lounge area, bathed in natural light. From the living room, a door opens out to a balcony, an inviting spot to enjoy the elevated outlook. The integration of a heat pump ensures year-round comfort, while the home's elevated position enhances both privacy and panoramic views, creating a tranquil yet connected living environment. On the lower level, versatility is key. With two additional bedrooms, a second lounge, and a full bathroom, the space is perfectly suited to accommodate extended family, entertaining, or even a home-based business. Internal access to a double garage adds convenience and security, complemented by abundant storage throughout. Additional features such as 19 solar panels significantly reduce power bills and environmental impact, while two heat pumps, one on each level provide climate control for every season. The large, fully fenced section offers a safe haven for children and pets to play freely. Positioned in a quiet cul-de-sac, 11 Latta Place enjoys both peace and accessibility. Just minutes from local shops, cafes, and the scenic Hakarimata walking tracks, this location blends lifestyle and practicality. Zoned for Ngāruawāhia Primary School and Fraser High School, and within easy reach of Te Awa The Base and Hamilton City, the property delivers convenience without compromise. This is a rare opportunity to secure a spacious, energy-efficient family home in a welcoming community with a strong sense of connection to nature and urban amenities alike. Call Del or Josh today to arrange your private viewing. Please get in contact with us for access to the property files.

READ MORE

Open Homes

Sunday 16th November

11:00am - 11:30am

Asking Price

$759,000

SPECIFICATIONS
Land Area 975 m²
Floor Size 240m²
Rates $4,952
SHARE THIS PROPERTY

Map

Explore the local area on the map and discover what’s nearby.

Mortgage Calculator

Determine your potential repayment amounts and the interest you will pay on a loan.

TALK TO A SALESPERSON

LOAN AMOUNT

$

INTEREST RATE

%

TERM

Years

PAYMENT FREQUENCY

Results

YOUR REPAYMENTS

$

0

Weekly

INTEREST YOU'LL PAY

$

0

TOTAL YOU'LL PAY

$

0

BUY WITH CONFIDENCE

Related Listings

Enquire about this property

Submit your details with your enquiry and you will receive a copy of the property information pack.

This field is for validation purposes and should be left unchanged.

What's my home worth?

Thinking of selling your home? Contact us for a free, no obligation market appraisal